Луганск
Пн-Пт: с 08:00 до 17:00; Сб: с 09:00 до 14:00
TikTok
Логотип
Категории товаров

Секционные противопожарные ворота с классом огнестойкости EI60

Гарантия

1 год на весь товар

Доставка из Москвы

от 2 до 4 дней

Доставка по ДНР

Бесплатно

Установка специалистами

Оплачивается отдельно

Предоплата

Без предоплаты

от

88 586 ₽

Цена указана с НДС 20%

Заказать расчет
Заказать
Блок консультации

Консультация и заказ

Описание
Подробное описание
Сертификаты и паспорта

Описание

Противопожарные секционные ворота применяются в качестве защиты от огня и распространения дыма в смежные с источником возгорания помещения. Противопожарные ворота изготавливаются из специальных огнеустойчивых панелей с минераловатной прослойкой и имеют конструкцию классических секционных ворот.

Конструкция

Конструкция

Секционные противопожарные ворота с классом огнестойкости EI60 1
Секционные противопожарные ворота с классом огнестойкости EI60 1

  1. Направляющая для полотна ворот
  2. Торсионный механизм
  3. Вал
  4. Верхний профиль
  5. Боковая опора с роликом
  6. Угловые стойки
  7. Кронштейн крепления горизонтальных направляющих к потолку
  8. Амортизатор
  9. Устройство защиты от обрыва пружины
  10. Барабан
  11. Верхний уплотнитель
  12. Петля
  13. Полотно ворот из сэндвич-панелей
  14. Боковая крышка
  15. Кронштейн с устройством защиты от обрыва троса
  16. Нижний профиль
  17. Нижний уплотнитель

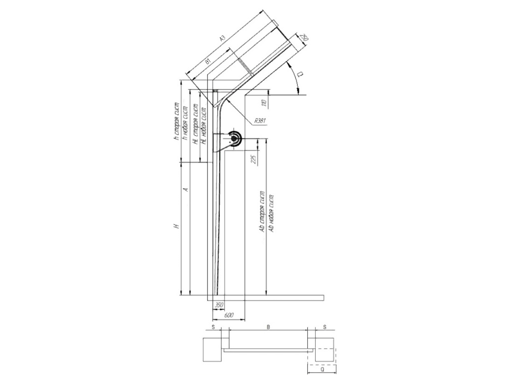
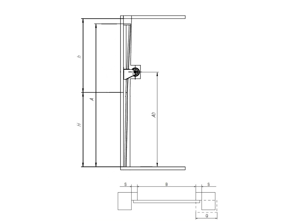
Способы монтажа

Накладной монтаж с внутренней стороны

Стандартные конструктивные решения

Секционные противопожарные ворота с классом огнестойкости EI60 2
Секционные противопожарные ворота с классом огнестойкости EI60 2
Секционные противопожарные ворота с классом огнестойкости EI60 3
Секционные противопожарные ворота с классом огнестойкости EI60 3
Секционные противопожарные ворота с классом огнестойкости EI60 4
Секционные противопожарные ворота с классом огнестойкости EI60 4
Секционные противопожарные ворота с классом огнестойкости EI60 5
Секционные противопожарные ворота с классом огнестойкости EI60 5
Секционные противопожарные ворота с классом огнестойкости EI60 6
Секционные противопожарные ворота с классом огнестойкости EI60 6
Секционные противопожарные ворота с классом огнестойкости EI60 7
Секционные противопожарные ворота с классом огнестойкости EI60 7
Секционные противопожарные ворота с классом огнестойкости EI60 8
Секционные противопожарные ворота с классом огнестойкости EI60 8
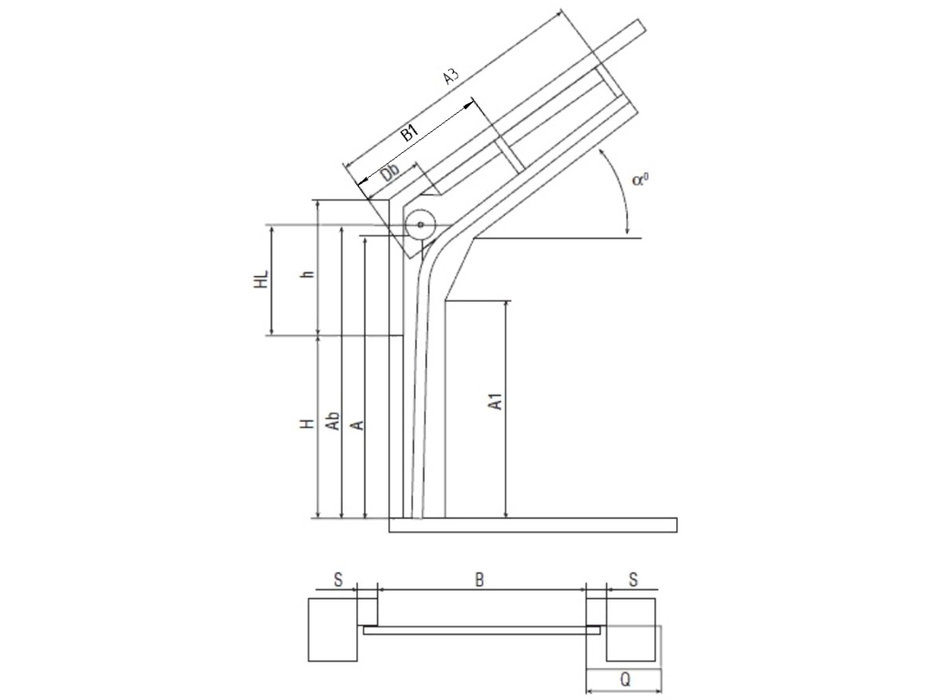
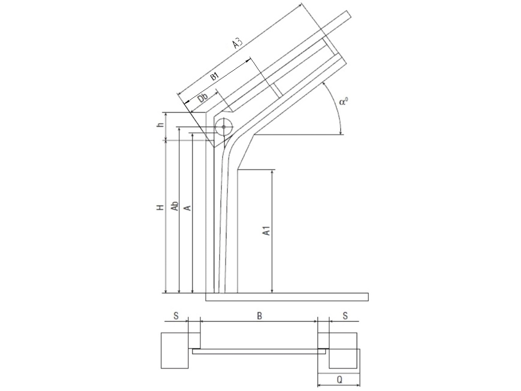
Высокий подъем, вал снизуВысокий подъемНаклонный высокий проемСтандартный наклонный проемСтандартный проемВысокий наклонный подъем, вал снизуВертикальный проем, вал снизу

Технические характеристики

Предел огнестойкости, минне менее 60 глухие
Приведенное сопротевление теплопередаче, м² *°С/Втне менее 0,4-0,8
Безотказность, количество циклов открывания-закрывания20 000
Звукоизоляция, дБдо 20
Вес полотна, кг/м222
Усилие ручного открывания и закрывания, Нне более 300

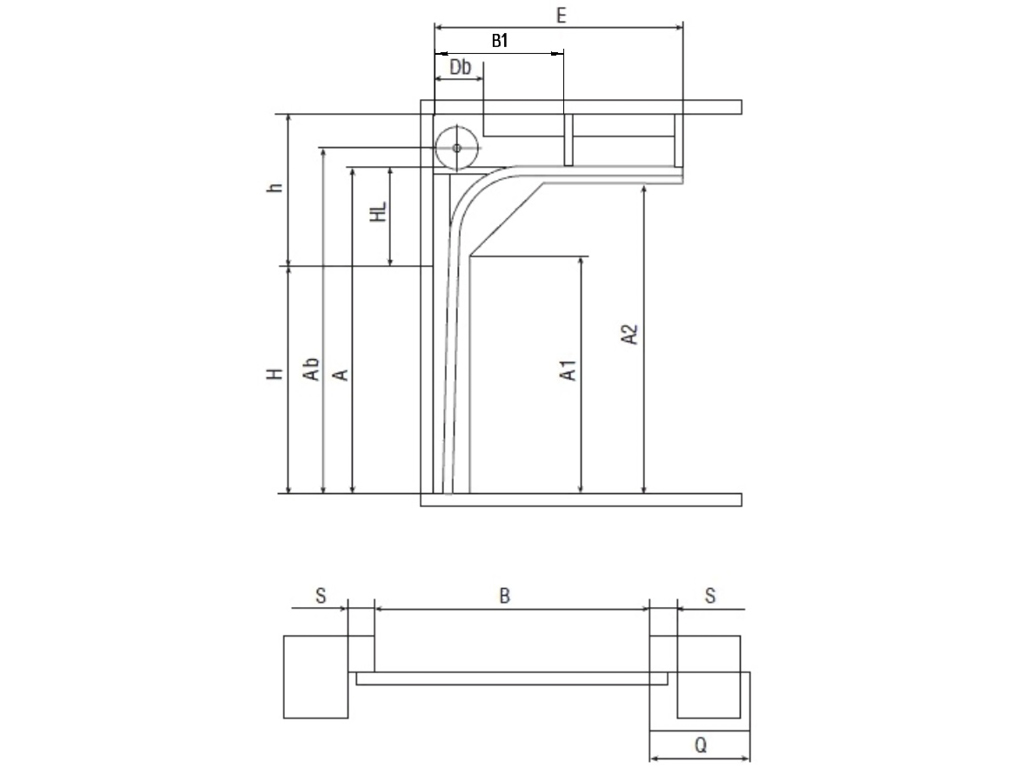
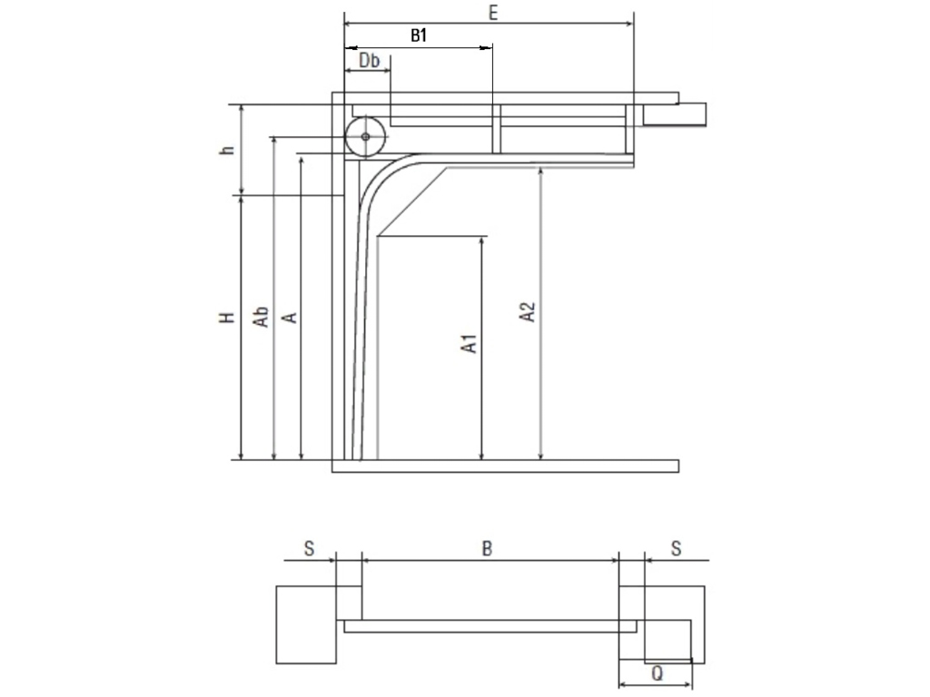
Размеры

Ширина проема, ммот 2000 до 6000*
Высота проема, ммот 2000 до 6000*
Притолока, ммот 650
Пристенки, ммот 300
Глубина помещения, ммвысота помещения + 600

* — Размеры от 5000 мм по ширине и высоте требуют дополнительного согласования с конструктором

Внешний вид

Секционные противопожарные ворота с классом огнестойкости EI60 9
Секционные противопожарные ворота с классом огнестойкости EI60 9

Секционные противопожарные ворота с классом огнестойкости EI60 10
Секционные противопожарные ворота с классом огнестойкости EI60 10

По периметру противопожарных секционных ворот устанавливаются резиновый уплотнитель и терморасширяющаяся лента, которая при нагревании увеличивается и герметизирует ворота. Благодаря тому, что ворота открываются вверх и откатываются под потолок, они не занимают много места внутри помещения, оставляя свободное пространство у проема. Большой выбор типов подъема ворот позволяет устанавливать их в помещения с различными размерами притолоки.

Ворота спроектированы и изготовлены из высококачественных материалов с применением современных технологий. Они безопасны в использовании — в их конструкции предусмотрены защитные устройства от разрыва троса и обрыва пружины, обеспечивающие надежную работу и предотвращающие падение полотна ворот. Противопожарные секционные ворота DoorHan имеют более легкий вес по сравнению с аналогами, предлагаемыми на рынке. Они обладают высокой прочностью, термо- и звукоизоляцией, а также защитой от взлома. Для автоматизации противопожарных секционных ворот применяются электроприводы DoorHan. Противопожарные ворота DoorHan полностью отвечают требованиям российских строительных стандартов и имеют сертификаты соответствия.

Внешний вид

Секционные противопожарные ворота с классом огнестойкости EI60 11
Секционные противопожарные ворота с классом огнестойкости EI60 11

Полотно имеет фактурные шероховатости «Stucco» и может быть окрашено в любой из 11 стандартных цветов, или за дополнительную плату, в любой из RAL-цветов

Секционные противопожарные ворота с классом огнестойкости EI60 12
Секционные противопожарные ворота с классом огнестойкости EI60 12

Комплектация

Базовая комплектация

  • Щит ворот из стальных сендвич-панелей толщиной 60 мм
  • Окрашенные торсионные пружины
  • Комплект боковых направляющих
  • Устройство защиты от разрыва пружины
  • Комплект крепежных элементов
  • Амортизаторы

Оставаясь на сайте, вы соглашаетесь на использование файлов cookies и обработку персональных данных

Принять
Отклонить